Factory Expo - 13321A

Built by Chariot Eagle

Manufactured

Home  →  Floor Plans  →  Factory Expo – 13321A

Overview

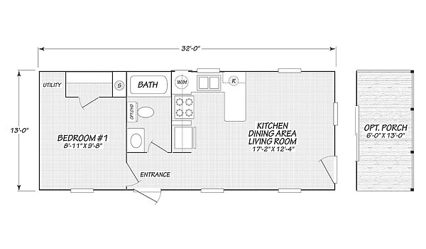
The Factory Expo / 13321A built by Chariot Eagle is a bright and efficient home designed to make the most of every square foot. Offering 416 square feet with 1 bedroom and 1 bathroom, The 13321A blends comfort and smart design in a welcoming layout. The open kitchen, dining, and living area creates a warm space for relaxing or hosting friends. A private bedroom sits near the full bath and utility area for everyday ease. With its inviting flow and thoughtful use of space, The 13321A delivers stylish living in a compact home you will love.

Share this home
Bedrooms 1
Bathrooms 1.00
Square Feet 416
Length 32' 0"
Width 13' 0"
Sections 1
Stories 1
Style Ranch

Tours & Videos

No 3d Tour Available

Specifications

No specification data available
Please Note:

All sizes and dimensions are nominal or based on approximate manufacturer measurements. 3D Tours and photos may include retailer and/or factory installed options. The manufacturer and/or retailer reserves the right to make changes due to any changes in material, color, specifications, and features at any time without notice or obligation.

Translate »