Falcon - 24402B

Built by Chariot Eagle

Manufactured

Home  →  Floor Plans  →  Falcon – 24402B

Overview

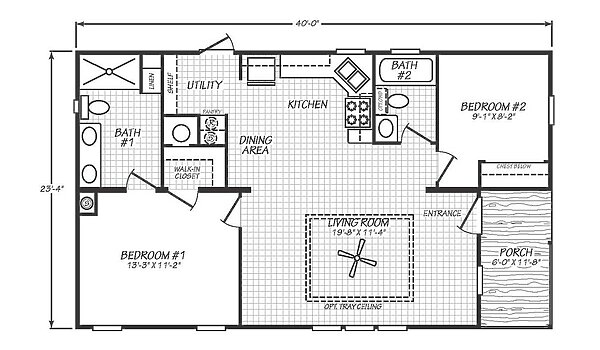
The Falcon / 24402B built by Chariot Eagle is a welcoming home that offers comfort, space, and smart design in 869 square feet. With 2 bedrooms and 2 bathrooms, The 24402B creates a layout that feels open and easy to enjoy. The kitchen and dining area sit at the center of the home and connect to a large living room, making it perfect for relaxing or entertaining. The primary bedroom includes a walk-in closet and nearby bath, while the second bedroom and bath add flexibility. The 24402B is a stylish home built for comfortable everyday living.

Share this home
Bedrooms 2
Bathrooms 2.00
Square Feet 869
Length 40' 0"
Width 24' 0"
Sections 1
Stories 1
Style Ranch

Tours & Videos

No 3d Tour Available

Specifications

No specification data available
Please Note:

All sizes and dimensions are nominal or based on approximate manufacturer measurements. 3D Tours and photos may include retailer and/or factory installed options. The manufacturer and/or retailer reserves the right to make changes due to any changes in material, color, specifications, and features at any time without notice or obligation.

Translate »