Falcon - 13522A

Built by Chariot Eagle

Manufactured

Home  →  Floor Plans  →  Falcon – 13522A

Overview

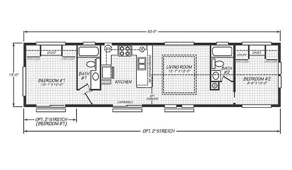
The Falcon / 13522A built by Chariot Eagle is a smart and stylish home designed for comfort and balance. With 682 square feet, 2 bedrooms, and 2 bathrooms, The 13522A offers space in all the right places. The open living room sits at the heart of the home and connects easily to the kitchen for a smooth, natural flow. Each bedroom is set on opposite ends for added privacy, with its own nearby bath. The 13522A blends function, charm, and easy living into one inviting design.

Share this home
Bedrooms 2
Bathrooms 2.00
Square Feet 682
Length 52' 0"
Width 13' 0"
Sections 1
Stories 1
Style Ranch

Tours & Videos

No 3d Tour Available

Specifications

No specification data available
Please Note:

All sizes and dimensions are nominal or based on approximate manufacturer measurements. 3D Tours and photos may include retailer and/or factory installed options. The manufacturer and/or retailer reserves the right to make changes due to any changes in material, color, specifications, and features at any time without notice or obligation.

Translate »